Croisette Iceland logo
Skráð 18. des. 2025
Söluyfirlit

Suðurlandsbraut 22

Atvinnuhúsn.Höfuðborgarsvæðið/Reykjavík/Háaleitis- og Bústaðahverfi-108
242 m2
10 Herb.
Verð
Tilboð
Mynd af Davíð Ólafsson
Davíð Ólafsson
Sölustjóri - atvinnueignir
Byggt 1986
Sameiginlegur
Fasteignanúmer
2012752
Húsgerð
Atvinnuhúsn.
Byggingarefni
Steypt
Númer hæðar
3
Númer íbúðar
1
Lóðarréttindi
Leigulóð
Inngangur
Sameiginlegur
Byggingarstig
7 - Fullgerð bygging
Matsstig
7 - Fullgerð bygging
CROISETTE - KNIGHT FRANK kynnir TIL LEIGU - Suðurlandsbraut 22 .

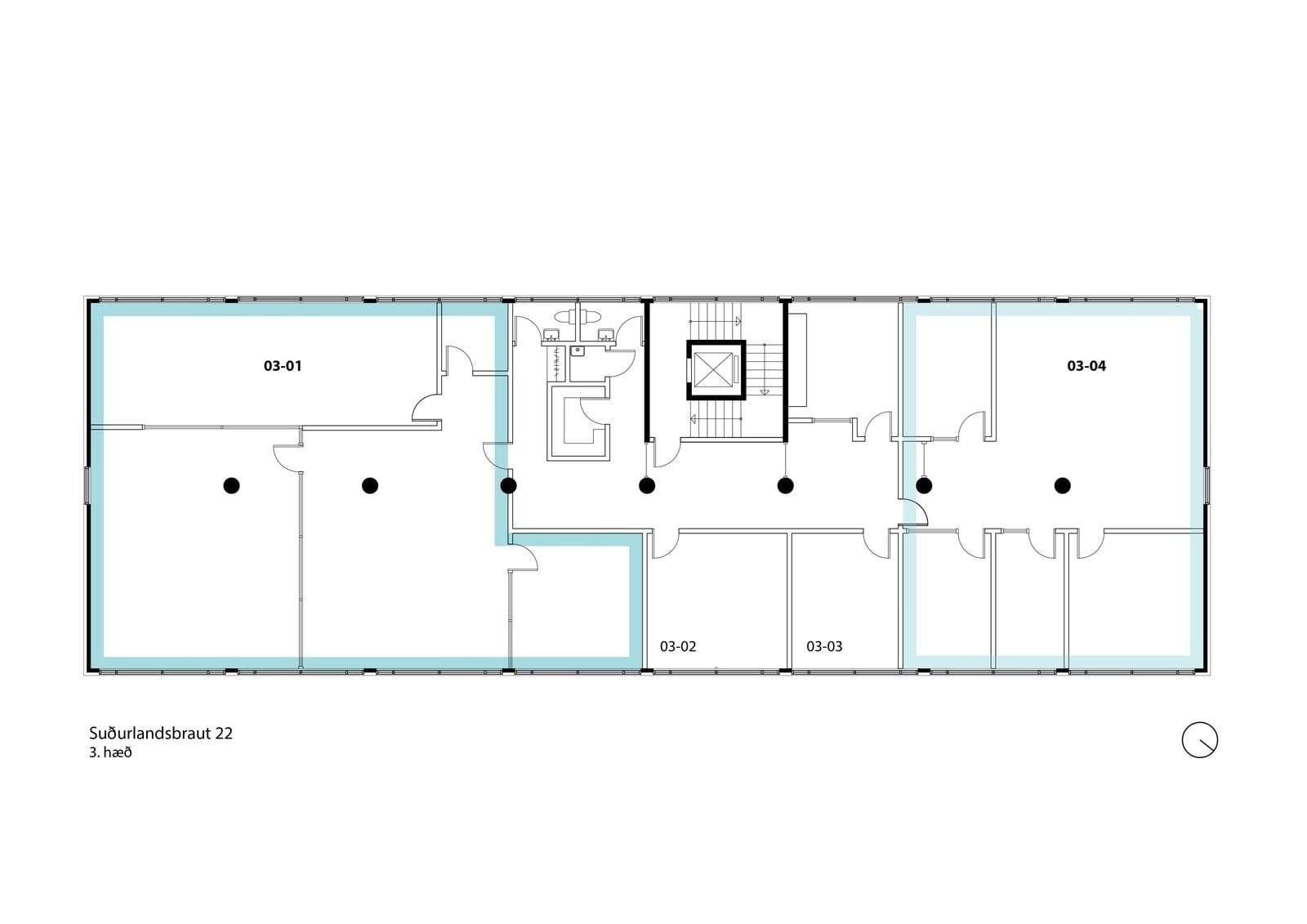
Á þriðju hæð byggingar er laust til leigu ríflega 240 fm skrifstofuhúsnæði á þessum vinsæla stað við Laugardalinn, merkt nr. 03-01 grunnmynd. Þá er laust í skrifstofukjarna félagsins á annarri hæð skrifstofa 02-03-01, 02-03-04 og skrifstofa 02-03-05 í þeirri álmu sömuleiðis, önnur þeirra er með útsýni til norðurs og hin til vesturs. Þá er að losna 113 fm skrifstofurými á efstu hæð byggingar með flottu útsýni til allra átta.


Nánari upplýsingar veitir:
 Davíð Ólafsson, Sölustjóri - atvinnueignir, í síma 766-6633
, tölvupóstur david@croisette.is.


Um skoðunar- og aðgæsluskyldu:

Í húsaleigulögum nr. 36/1994 er kveðið á um heimild aðila kalla til skoðunaraðila til úttektar á húsnæðinu fyrir afhendingu. Croisette - Knight Frank bendir væntanlegum leigjendum á að kynna sér vel ástand fasteigna við skoðun og fyrir tilboðsgerð og ef þurfa þykir að leita til sérfræðinga um nánari ástandsskoðun. Í tilfelli atvinnuhúsnæðis er ríkari heimild aðila að semja sig frá lögum og gildir þá ákvæði leigusamnings ef til ágreinnings kemur. 

 

Sambærilegar eignir

Opna eign
Til leigu
Image
Opna eign
Suðurlandsbraut 18
108 Reykjavík
300 m2
Skrifstofuhúsnæði
59
Tilboð
Opna eign
Til leigu
Image
Opna eign
Skeifan 19
108 Reykjavík
283 m2
Skrifstofuhúsnæði
1
Tilboð
Opna eign
Til leigu
Image
Opna eign
Hafnarstræti 7
101 Reykjavík
295.5 m2
Verslunarhúsnæði
Tilboð
Opna eign
Image
Opna eign
Bíldshöfði 18
110 Reykjavík
294.5 m2
Skrifstofuhúsnæði
11
Fasteignamat 55.800.000 kr.
Tilboð
Croisette Iceland logo
Croisette Iceland ehf.
kt. 441120-0790
Hafðu samband
allir@croisette.isS: 569 9090
Kirkjuteigur 21
kt. 4411200790
Hlekkir
Samfélagsmiðlar
© Copyright 2026 - Croisette Iceland
Knúið af
Fasteignaleitin