Croisette Iceland logo
Skráð 3. des. 2025
Söluyfirlit

Kvisthagi 7

FjölbýlishúsHöfuðborgarsvæðið/Reykjavík/Vesturbær-107
242.3 m2
6 Herb.
5 Svefnh.
3 Baðherb.
Verð
217.000.000 kr.
Fermetraverð
895.584 kr./m2
Fasteignamat
160.750.000 kr.
Brunabótamat
88.500.000 kr.
Mynd af Styrmir Bjartur Karlsson
Styrmir Bjartur Karlsson
Framkvæmdastjóri og lfs.
Byggt 1952
Þvottahús
Garður
Sérinngangur
Fasteignanúmer
2027964
Húsgerð
Fjölbýlishús
Byggingarefni
Steypt
Númer hæðar
2
Hæðir í húsi
4
Hæðir í íbúð
2
Númer íbúðar
1
Vatnslagnir
Ekki vitað
Raflagnir
Ekki vitað
Frárennslislagnir
Ekki vitað
Gluggar / Gler
Ekki vitað
Þak
Ekki vitað
Lóðarréttindi
Leigulóð
Svalir
Upphitun
Ofnar
Inngangur
Sérinngangur
Matsstig
7 - Fullgerð bygging
CROISETTE - KNIGHT FRANK kynnir í einkasölu, Kvisthaga 7 í Vesturbæ Reykjavíkur. 

Stórkostleg fjölskylduíbúð á tveimur hæðum á þessum vinsæla stað með séríbúð í kjallara sem er í útleigu. 

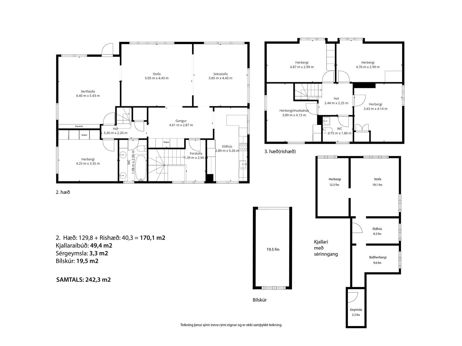
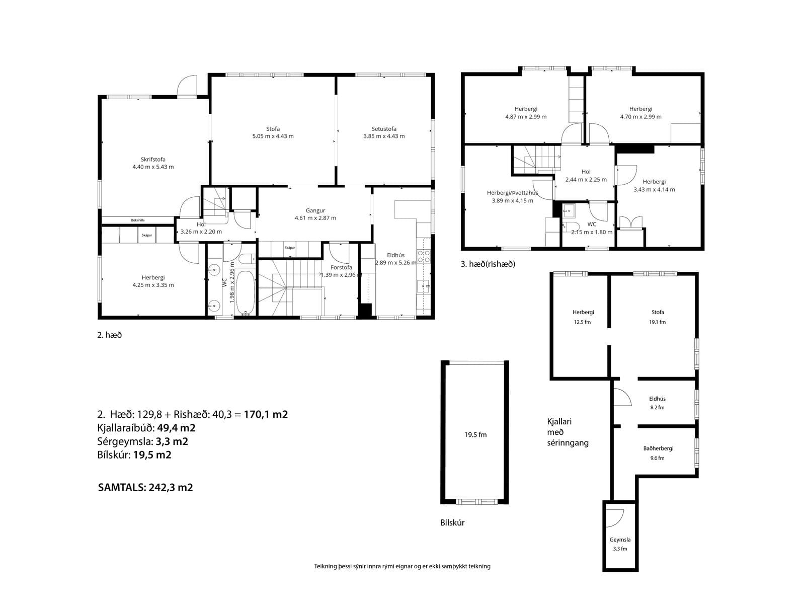
Mjög falleg 222,8 fm efri sérhæð ásamt risi, séríbúð í kjallara og 19,5 fm bílskúr í tvíbýlishúsi. 
Samtals: 242,3 fm. 

Séríbúðin í kjallara er í útleigu með frábærum tekjum. 

Húsið Kvisthaga 7 er steinsteypt, einangrað að innan og steinað að utan.
Í húsinu eru tvær íbúðir með sérinngangi og var húsið byggt árið 1952.

Nánari lýsing:
Teppalagður stigi upp á efri hæðina. Frá stigapalli er gengið inn í íbúðina. Komið er inn á gang / hol sem er með gott skápapláss.
Á hægri hönd er eldhús með snyrtilegri og vel yfirfarinni 60´s innréttingu, flísar á milli efri og neðri skápa, borðkrókur.
Innréttingin hefur verið yfirfarin mjög vel og allt virkar eins og það á að gera. Flísar frá Ebson á gólfum.

Björt og rúmgóð stofa og borðstofa, ljóst olíuborið furu parket sem gefur íbúðinni mjög létt yfirbragð.
Stórir og bjartir gluggar með útsýni út á sjó í gegnum Ægissíðuna. 
Búið er að opna íbúðina mikið frá upprunalegu skipulagi. Stærri stofur og rúmar opnanir á milli rýma.

Flísalagt baðherbergi með snyrtilegri innréttingu, baðkar, handklæðaofn og gluggi.
Tvö rúmgóð svefnherbergi og er annað herbergið nýtt í dag sem skrifstofa með leshorni.
Frá skrifstofuherbergi er gengið út á yfirbyggðar svalir sem snúa út í garð. 

Efri hæð: 
Tréstigi upp í risið og þar er komið inn í hol. Baðherbergi með flísum, neðri skápur, velux þakgluggi.
Rúmgott þvottahús / geymsla með tveimur þakgluggum.

Rúmgott hjónaberbergi með fallegum glugga sem snýr út á sjó.
Tvö svefnherbergi með innbyggðum rúmum og skápum úr tekk.
Mjög sjarmerandi og skemmtilegt skipulag sem er upprunalegt og búið að gefa gott viðhald í gegnum tíðina. 

Aukaíbúð: Í kjallaranum er 2ja herbergja íbúð (innréttuð úr rými sem áður var sameign) ásamt sérgeymslu og sameiginlegri geymslu.
Íbúðin sjálf skiptist í eldhús, stofu, svefnherbergi og baðherbergi með tengi fyrir þvottavél og þurrkara. Á baðherberginu er upphengt salerni, handklæðaofn, sturta og gluggi. Fataskápur í svefnherbergi. Gólfefni: parket og flísar að mestu á gólfum.    

EIGNIN ER FRÁBÆRLEGA VEL STAÐSETT MEÐ TILLITI TIL ALLRAR ALMENNRAR ÞJÓNUSTU EINS OG SKÓLA, LEIKSKÓLA OG ÍÞRÓTTAIÐKUNAR. STUTT ER Í SJÁVARSÍÐUNA, MELA- OG HAGASKÓLA, MELABÚÐINA, KRAMBÚÐINA, VESTURBÆJARLAUGINA O.M.FL. 

Ekkert formlegt húsfélag er starfrækt í húsinu. 

Nánari upplýsingar veita: 
Styrmir Bjartur Karlsson, framkvæmdastjóri og lfs., í síma 899 9090, tölvupóstur styrmir@croisette.is

Um skoðunar- og aðgæsluskyldu:
Í lögum um fasteignakaup nr. 40/2002 er kveðið á um ríka skoðunarskyldu kaupenda á fasteignum. Croisette - Knight Frank fasteignasala bendir væntanlegum kaupendum á að kynna sér vel ástand fasteigna við skoðun og fyrir tilboðsgerð og ef þurfa þykir að leita til sérfræðinga um nánari ástandsskoðun.

Forsendur söluyfirlits:
Söluyfirlit er samið af fasteignasala í samræmi við ákvæði laga nr. 70/2015. Þær upplýsingar sem fram koma í söluyfirliti þessu eru sóttar í opinberar skrár, til seljanda sjálfs og eftir atvikum til húsfélags. Seljandi veitir upplýsingar um eign í samræmi við upplýsingaskyldu laga um fasteignakaup nr. 40/2002. Fasteignasali sannreynir að þær upplýsingar séu réttar með sjónskoðun á eigninni. Fasteignasali getur ekki fullyrt um ástand og eiginleika þeirra hluta fasteigna sem ekki eru aðgengilegir og sjást ekki berum augum, t.d. lagnir, dren, skólp og þak.

Gjöld sem kaupandi þarf að standa straum af vegna kaupanna:
 - Stimpilgjald af kaupsamningi sem er hlutfall af fasteignamati. Stimpilgjald er 0,8% fyrir einstaklinga (0,4% við fyrstu kaup m.v. að lágmarki 50% eignarhlut) og 1,6% fyrir lögaðila.
 - Þinglýsingargjald af kaupsamningi, veðskuldabréfum, veðleyfum o.fl. Þinglýsingargjald er kr. 2.700,- fyrir hvert skjal.
 - Lántökugjald lánastofnunar. Um lántökugjald vísast í gjaldskrá viðkomandi lánveitanda.
 - Umsýsluþóknun fasteignasölu skv. gjaldskrá.
 - Ef um nýbyggingu er að ræða greiðir kaupandi skipulagsgjald, 0,3% af væntanlegu brunabótamati, þegar það er lagt á.
Byggt 1955
2 m2
Fasteignanúmer
2027964
Byggingarefni
Steypt
Númer hæðar
01
Númer eignar
02
Húsmat
0 kr.
Lóðarmat
0 kr.
Brunabótamat
5.700.000 kr.
Matsstig
7 - Fullgerð bygging
Croisette Iceland logo
Croisette Iceland ehf.
kt. 441120-0790
Hafðu samband
allir@croisette.isS: 569 9090
Kirkjuteigur 21
kt. 4411200790
Hlekkir
Samfélagsmiðlar
© Copyright 2026 - Croisette Iceland
Knúið af
Fasteignaleitin