Croisette Iceland logo
Skráð 19. ágúst 2025
Söluyfirlit

Eyravegur - Selfossi 42

Atvinnuhúsn.Suðurland/Selfoss-800
174.7 m2
Verð
Tilboð
Mynd af Davíð Ólafsson
Davíð Ólafsson
Sölustjóri - atvinnueignir
Byggt 2000
Sameiginlegur
Fasteignanúmer
2254922
Húsgerð
Atvinnuhúsn.
Byggingarefni
Stál
Númer hæðar
1
Númer íbúðar
1
Inngangur
Sameiginlegur
Matsstig
7 - Fullgerð bygging
Croisette Real Estate Partner kynnir TIL LEIGU - Eyravegur - Selfossi 42 .

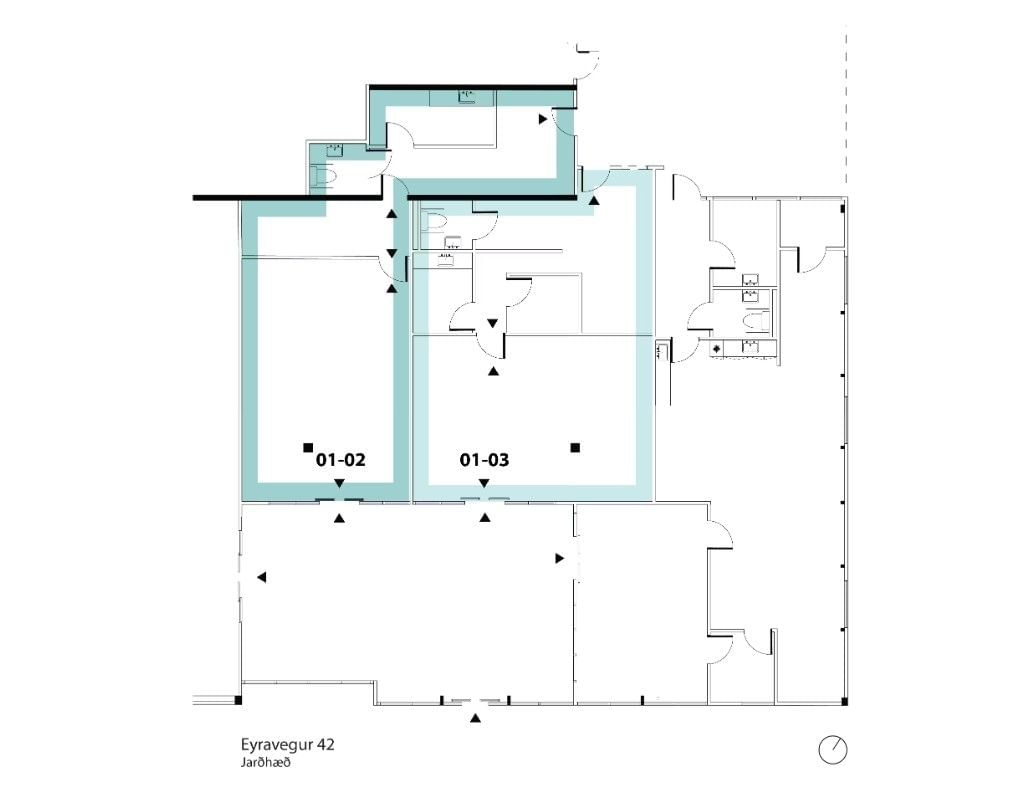
Tvö verslunar- og þjónusturými verða fljótlega tilbúin til leigu í nýjum verslunarkjarna á Selfossi. Rými eru annars vegar 174,7 fm og hins vegar 1179,6 fm, merkt á grunnmynd nr. 01-02 og 01-03. Rýmin deila sameiginlegu anddyri með nýjum verslunum Nettó og Lyfjavals.


Nánari upplýsingar veitir:
 Davíð Ólafsson, Sölustjóri - atvinnueignir, í síma 766-6633
, tölvupóstur david@croisette.is.



Um skoðunar- og aðgæsluskyldu:

Í húsaleigulögum nr. 36/1994 er kveðið á um heimild aðila kalla til skoðunaraðila til úttektar á húsnæðinu fyrir afhendingu. Croisette real estare partner bendir væntanlegum leigjendum á að kynna sér vel ástand fasteigna við skoðun og fyrir tilboðsgerð og ef þurfa þykir að leita til sérfræðinga um nánari ástandsskoðun. Í tilfelli atvinnuhúsnæðis er ríkari heimild aðila að semja sig frá lögum og gildir þá ákvæði leigusamnings ef til ágreinnings kemur. 
 

Sambærilegar eignir

Opna eign
Image
Opna eign
Eyravegur - Selfossi 42
800 Selfoss
174.7 m2
Verslunarhúsnæði
Tilboð
Opna eign
3D Sýn
Image
Opna eign
Austurmörk 7
810 Hveragerði
195.5 m2
Lager - Iðnaðarhúsnæði
21
379 þ.kr./m2
74.000.000 kr.
Croisette Iceland logo
Croisette Iceland ehf.
kt. 441120-0790
Hafðu samband
allir@croisettehome.isS: 569 9090
Kirkjuteigur 21
kt. 4411200790
Hlekkir
Samfélagsmiðlar
© Copyright 2026 - Croisette Iceland
Knúið af
Fasteignaleitin