Croisette Iceland logo
Skráð 3. júlí 2025
Söluyfirlit

Rauðarárstígur 10

Atvinnuhúsn.Höfuðborgarsvæðið/Reykjavík/Austurbær-105
420 m2
Verð
Tilboð
Mynd af Davíð Ólafsson
Davíð Ólafsson
Sölustjóri - atvinnueignir
Byggt 1931
Sameiginlegur
Fasteignanúmer
2010362
Húsgerð
Atvinnuhúsn.
Byggingarefni
Steypt
Númer hæðar
2
Númer íbúðar
1
Inngangur
Sameiginlegur
Matsstig
7 - Fullgerð bygging
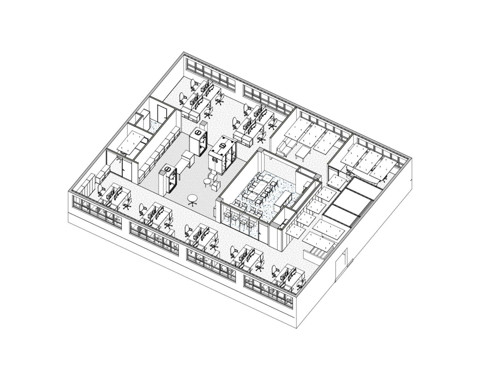
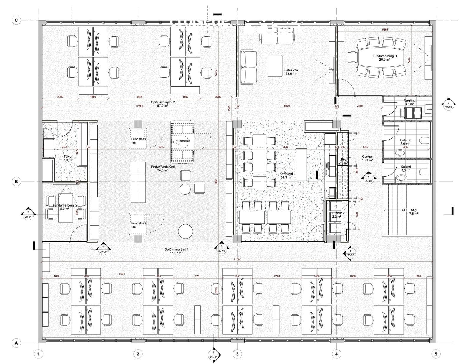
CROISETTE - KNIGHT FRANK kynnir TIL LEIGU - Rauðarárstígur 10 .

Til leigu 400fm skrifstofa á frábærum stað í miðbæ Reykjavíkur.
Um er að ræða rými á 2.hæð sem verið er að endurgera alveg frá grunni.
Skilalýsing verður gerð í samráði við nýjan leigutaka sem þá getur haft áhrif á endanlegt útlit og skipulag rýmisins og þannig í raun hægt
að klæðskerasníða skrifstofuna að viðkomandi. 
Eins og teiknað hefur verið er gott pláss fyrir um 30-40 starfsmenn auk fundarherbergis, kaffiaðstöðu, setukrók, tæknirýmis og salerni.
Mögulega hægt að fá 3-4 stæði í bílakjallara og 5-10 í portinu á bakvið húsið.

Mikil uppbygging á sér stað á þessu svæði sem gefur því mikinn sjarma og skapar mjög lifandi umhverfi til framtíðar.
Nánar hægt að skoða á https://reykjavik.is/hlemmur  
https://www.visir.is/g/20242526413d/hlemmur-gjor-breytist-i-sumar

Nánari upplýsingar veitir:
Davíð Ólafsson, Sölustjóri - atvinnueignir, í síma 766-6633
, tölvupóstur david@croisette.is.



Um skoðunar- og aðgæsluskyldu:

Í húsaleigulögum nr. 36/1994 er kveðið á um heimild aðila kalla til skoðunaraðila til úttektar á húsnæðinu fyrir afhendingu. Croisette - Knight Frank bendir væntanlegum leigjendum á að kynna sér vel ástand fasteigna við skoðun og fyrir tilboðsgerð og ef þurfa þykir að leita til sérfræðinga um nánari ástandsskoðun. Í tilfelli atvinnuhúsnæðis er ríkari heimild aðila að semja sig frá lögum og gildir þá ákvæði leigusamnings ef til ágreinnings kemur. 
 

Sambærilegar eignir

Opna eign
Til leigu
3D Sýn
Image
Opna eign
Ármúli 44
108 Reykjavík
400 m2
Verslunarhúsnæði
Tilboð
Opna eign
Til leigu
Image
Opna eign
Skútuvogur 12
104 Reykjavík
440 m2
Atvinnuhúsn.
Tilboð
Opna eign
Image
Opna eign
Ármúli (LEIGA) 19
108 Reykjavík
380 m2
Lager - Iðnaðarhúsnæði
Tilboð
Opna eign
Image
Opna eign
Skútuvogur 12
104 Reykjavík
440 m2
Atvinnuhúsn.
Fasteignamat 176.550.000 kr.
Tilboð
Croisette Iceland logo
Croisette Iceland ehf.
kt. 441120-0790
Hafðu samband
allir@croisette.isS: 569 9090
Kirkjuteigur 21
kt. 4411200790
Hlekkir
Samfélagsmiðlar
© Copyright 2025 - Croisette Iceland
Knúið af
Fasteignaleitin