Croisette Iceland logo
Skráð 15. ágúst 2025
Söluyfirlit

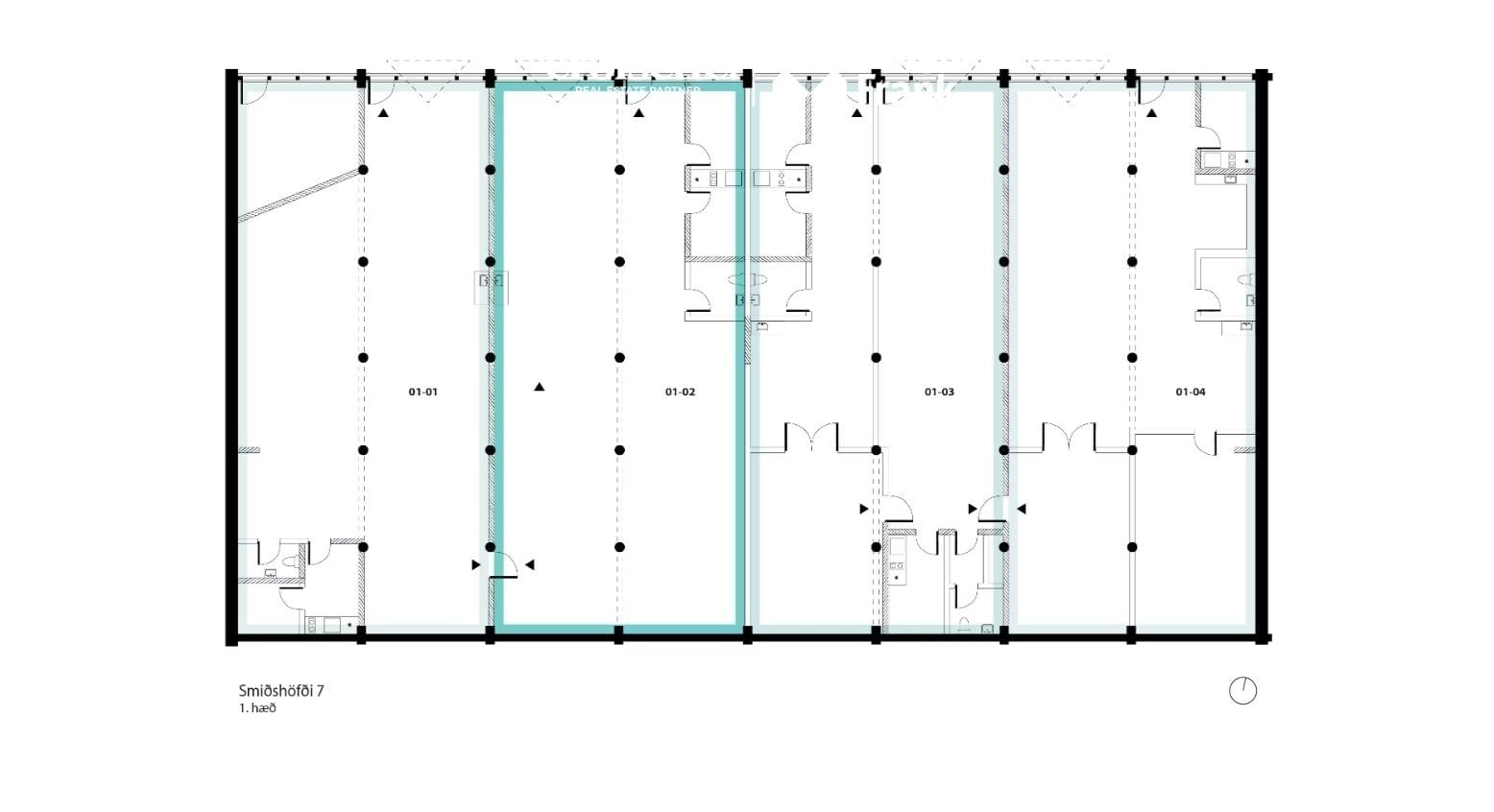
Smiðshöfði 7

Atvinnuhúsn.Höfuðborgarsvæðið/Reykjavík/Árbær-110
192 m2
Verð
Tilboð
Mynd af Davíð Ólafsson
Davíð Ólafsson
Sölustjóri - atvinnueignir
Byggt 1979
Sameiginlegur
Fasteignanúmer
2043058_1
Húsgerð
Atvinnuhúsn.
Byggingarefni
Steypt
Númer hæðar
1
Númer íbúðar
1
Lóðarréttindi
Leigulóð
Inngangur
Sameiginlegur
Matsstig
7 - Fullgerð bygging
CROISETTE - KNIGHT FRANK kynnir TIL LEIGU - Smiðshöfði 7 .

Fljótlega losna til leigu tvö ríflega 190 fm iðnaðarbil á þessum vinsæla stað á Höfða. Um er að ræða sitthvorn enda byggingar, merkt annars vegar númer 01-01 á grunnmynd og hins vegar nr. 01-04.


Nánari upplýsingar veitir:
 Davíð Ólafsson, Sölustjóri - atvinnueignir, í síma 766-6633
, tölvupóstur david@croisette.is.



Um skoðunar- og aðgæsluskyldu:

Í húsaleigulögum nr. 36/1994 er kveðið á um heimild aðila kalla til skoðunaraðila til úttektar á húsnæðinu fyrir afhendingu. Croisette - Knight Frank bendir væntanlegum leigjendum á að kynna sér vel ástand fasteigna við skoðun og fyrir tilboðsgerð og ef þurfa þykir að leita til sérfræðinga um nánari ástandsskoðun. Í tilfelli atvinnuhúsnæðis er ríkari heimild aðila að semja sig frá lögum og gildir þá ákvæði leigusamnings ef til ágreinnings kemur. 

 

Sambærilegar eignir

Opna eign
Til leigu
Image
Opna eign
Smiðshöfði 7
110 Reykjavík
192 m2
Lager - Iðnaðarhúsnæði
Tilboð
Opna eign
Til leigu
Image
Opna eign
Borgartún 24
105 Reykjavík
180 m2
Verslunarhúsnæði
1
Tilboð
Opna eign
Image
Opna eign
Borgartún 24
105 Reykjavík
180 m2
Verslunarhúsnæði
1
Tilboð
Opna eign
Image
Opna eign
Ármúli 19
108 Reykjavík
193 m2
Lager - Iðnaðarhúsnæði
Tilboð
© Copyright 2025 - Croisette Iceland
Knúið af
Fasteignaleitin