CROISETTE - KNIGHT FRANK kynnir TIL LEIGU - Skeifan 19 .
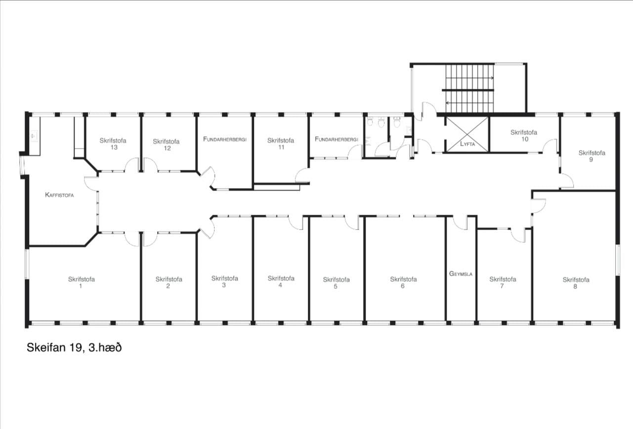
Skrifstofukjarni félagsins í Skeifunni 19 er beint á móti Pennanum. Mikil eftirspurn hefur verið eftir minni skrifstofurýmum á svæðinu en á hæðinni eru samtals 11 skrifstofur. Allar skrifstofurnar eru með hlutdeild í tveimur fundarherbergjum á sömu hæð og eldhússaðstöðu. Skrifstofurnar eru frá tæplega 70 til tæplega 20 fm og snúa þrjár þeirra í suður og átta í norður. Skrifstofurnar eru leigðar án húsgagna en fundarherbergin eru fullinnréttuð og þá eru sömuleiðis flott setsvæði þar sem hægt er að hitta fleiri leigutaka hæðarinnar og koma á tengingum og samvinnu sé áhugi fyrir slíku. Ein skrifstofa er laus á hæðinni og er merkt nr. 8 á grunnmynd hæðar. Um er að ræða tæplega 67 fm hornskrifstofu með útsýni til norðurs.
Um skoðunar- og aðgæsluskyldu: Í húsaleigulögum nr. 36/1994 er kveðið á um heimild aðila kalla til skoðunaraðila til úttektar á húsnæðinu fyrir afhendingu. Croisette - Knight Frank bendir væntanlegum leigjendum á að kynna sér vel ástand fasteigna við skoðun og fyrir tilboðsgerð og ef þurfa þykir að leita til sérfræðinga um nánari ástandsskoðun. Í tilfelli atvinnuhúsnæðis er ríkari heimild aðila að semja sig frá lögum og gildir þá ákvæði leigusamnings ef til ágreinnings kemur.
CROISETTE - KNIGHT FRANK kynnir TIL LEIGU - Skeifan 19 .
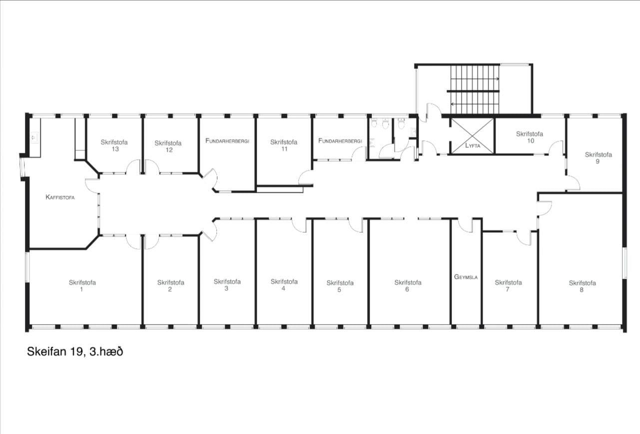
Skrifstofukjarni félagsins í Skeifunni 19 er beint á móti Pennanum. Mikil eftirspurn hefur verið eftir minni skrifstofurýmum á svæðinu en á hæðinni eru samtals 11 skrifstofur. Allar skrifstofurnar eru með hlutdeild í tveimur fundarherbergjum á sömu hæð og eldhússaðstöðu. Skrifstofurnar eru frá tæplega 70 til tæplega 20 fm og snúa þrjár þeirra í suður og átta í norður. Skrifstofurnar eru leigðar án húsgagna en fundarherbergin eru fullinnréttuð og þá eru sömuleiðis flott setsvæði þar sem hægt er að hitta fleiri leigutaka hæðarinnar og koma á tengingum og samvinnu sé áhugi fyrir slíku. Ein skrifstofa er laus á hæðinni og er merkt nr. 8 á grunnmynd hæðar. Um er að ræða tæplega 67 fm hornskrifstofu með útsýni til norðurs.
Um skoðunar- og aðgæsluskyldu: Í húsaleigulögum nr. 36/1994 er kveðið á um heimild aðila kalla til skoðunaraðila til úttektar á húsnæðinu fyrir afhendingu. Croisette - Knight Frank bendir væntanlegum leigjendum á að kynna sér vel ástand fasteigna við skoðun og fyrir tilboðsgerð og ef þurfa þykir að leita til sérfræðinga um nánari ástandsskoðun. Í tilfelli atvinnuhúsnæðis er ríkari heimild aðila að semja sig frá lögum og gildir þá ákvæði leigusamnings ef til ágreinnings kemur.