Croisette Iceland logo
Skráð 2. júlí 2025
Söluyfirlit

Holtasmári 1

Atvinnuhúsn.Höfuðborgarsvæðið/Kópavogur-201
130 m2
Verð
Tilboð
Byggt 2001
Sameiginlegur
Fasteignanúmer
2241745_1
Húsgerð
Atvinnuhúsn.
Byggingarefni
Steypt
Númer hæðar
1
Númer íbúðar
1
Inngangur
Sameiginlegur
Matsstig
7 - Fullgerð bygging
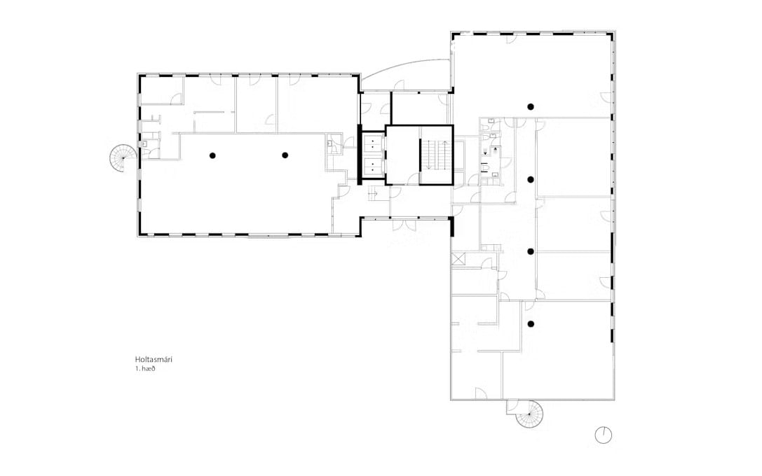
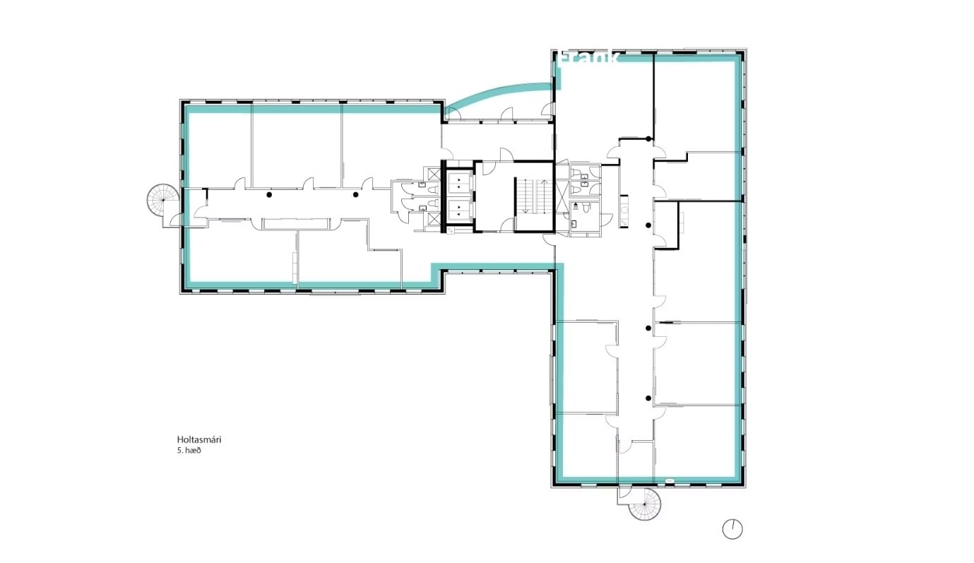
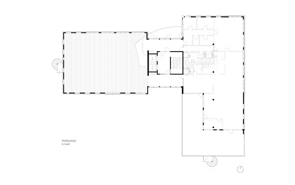
Croisette Real Estate Partner kynnir TIL LEIGU - Holtasmári 1 .

Laus til LEIGU um 920 fm skrifstofuhúsnæði á fimmtu hæð hæð byggingar með stórbrotnu útsýni til allra átta. Þá losnar fljótlega efsta hæðin í byggingunni, samtals tæplega 460 fm með stórum svölum og stórbrotnu útsýni. Eftirsótt bygging á vinsælum stað á miðju höfuðborgarsvæðinu. Eignin er vel þekkt sem Hjartaverndarhúsið. Við bygginguna, á plani úti til austurs, er fjöldi stæða fyrir viðskiptavini byggingar. Þá losnaði nýverið verslunarhúsnæði á jarðhæð byggingar, samtals um 640 fm sem möguleiki er að skipta í þrjú minni verslunar- eða skrifstofurými eins og grunnmynd hæðar sýnir. Stórir gluggar og mikill sýnileiki frá götu.


Nánari upplýsingar veitir:
 Davíð Ólafsson, Sölustjóri - atvinnueignir, í síma 766-6633
, tölvupóstur david@croisette.is.


Um skoðunar- og aðgæsluskyldu:

Í húsaleigulögum nr. 36/1994 er kveðið á um heimild aðila kalla til skoðunaraðila til úttektar á húsnæðinu fyrir afhendingu. Croisette real estare partner bendir væntanlegum leigjendum á að kynna sér vel ástand fasteigna við skoðun og fyrir tilboðsgerð og ef þurfa þykir að leita til sérfræðinga um nánari ástandsskoðun. Í tilfelli atvinnuhúsnæðis er ríkari heimild aðila að semja sig frá lögum og gildir þá ákvæði leigusamnings ef til ágreinnings kemur. 
 

Sambærilegar eignir

Opna eign
Til leigu
Image
Opna eign
Silfursmári 8
201 Kópavogur
166 m2
Verslunarhúsnæði
1
Tilboð
Opna eign
Image
Opna eign
Silfursmári - LEIGA 8
201 Kópavogur
150 m2
Verslunarhúsnæði
1
Tilboð
Croisette Iceland logo
Croisette Iceland ehf.
kt. 441120-0790
Hafðu samband
Hlekkir
Samfélagsmiðlar
© Copyright 2025 - Croisette Iceland
Knúið af
Fasteignaleitin