Croisette Iceland logo
Skráð 29. okt. 2025
Söluyfirlit

Ármúli 21

Atvinnuhúsn.Höfuðborgarsvæðið/Reykjavík/Háaleitis- og Bústaðahverfi-108
139 m2
Verð
Tilboð
Mynd af Davíð Ólafsson
Davíð Ólafsson
Sölustjóri - atvinnueignir
Byggt 1972
Sameiginlegur
Fasteignanúmer
2313718
Húsgerð
Atvinnuhúsn.
Byggingarefni
Steypt
Númer hæðar
2
Númer íbúðar
2
Lóðarréttindi
Leigulóð
Inngangur
Sameiginlegur
Matsstig
7 - Fullgerð bygging
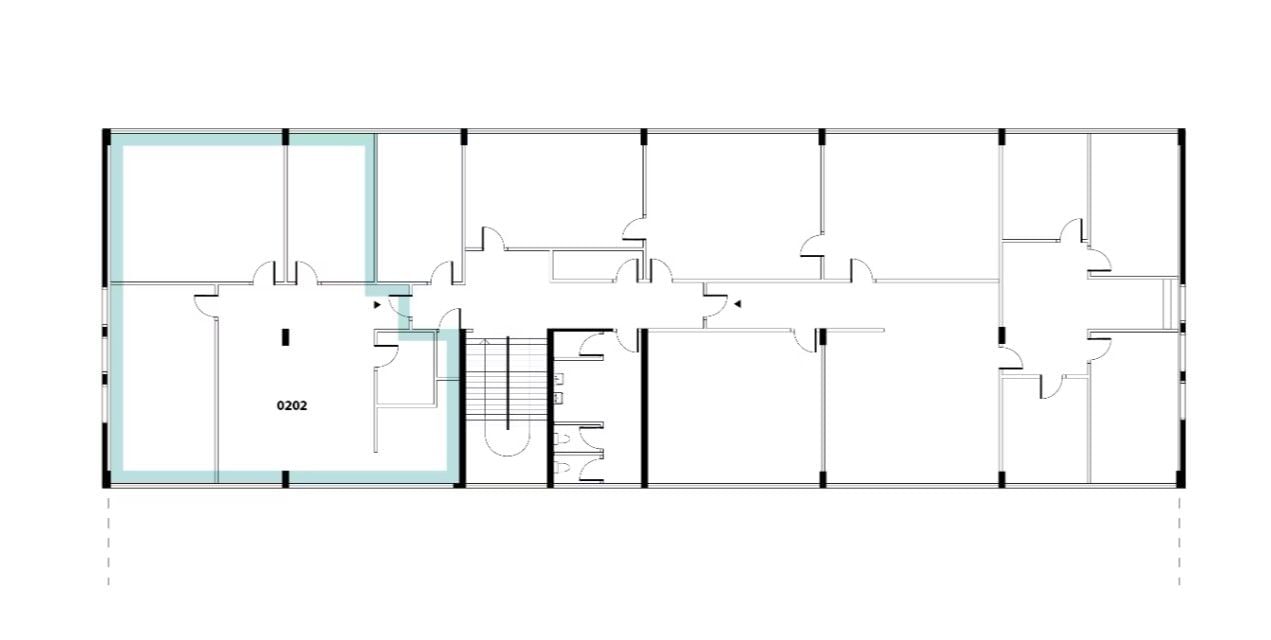
Croisette Real Estate Partner kynnir TIL LEIGU - Ármúli 21 .

Laus til leigu tæplega 139 fm skrifstofuhúsnæði á annarri hæð á þessum vinsæla stað í Múlunum. Bjart skrifstofurými með stórum gluggum. Skrifstofurýmið er sambland af góðu opnu rými, fundarherbergi, kaffistofu og lokaðri skrifstofu.



Nánari upplýsingar veitir:
 Davíð Ólafsson, Sölustjóri - atvinnueignir, í síma 766-6633
, tölvupóstur david@croisette.is.



Um skoðunar- og aðgæsluskyldu:

Í húsaleigulögum nr. 36/1994 er kveðið á um heimild aðila kalla til skoðunaraðila til úttektar á húsnæðinu fyrir afhendingu. Croisette real estare partner bendir væntanlegum leigjendum á að kynna sér vel ástand fasteigna við skoðun og fyrir tilboðsgerð og ef þurfa þykir að leita til sérfræðinga um nánari ástandsskoðun. Í tilfelli atvinnuhúsnæðis er ríkari heimild aðila að semja sig frá lögum og gildir þá ákvæði leigusamnings ef til ágreinnings kemur. 
 

Sambærilegar eignir

Opna eign
Til leigu
Image
Opna eign
Ármúli 11
108 Reykjavík
127 m2
Skrifstofuhúsnæði
Tilboð
Opna eign
Til leigu
Image
Opna eign
Suðurlandsbraut 8
108 Reykjavík
188 m2
Verslunarhúsnæði
Tilboð
Opna eign
Image
Opna eign
Suðurlandsbraut 8
108 Reykjavík
188 m2
Verslunarhúsnæði
Tilboð
Opna eign
Image
Opna eign
Ármúli (LEIGA) 26
108 Reykjavík
140 m2
Skrifstofuhúsnæði
Tilboð
Croisette Iceland logo
Croisette Iceland ehf.
kt. 441120-0790
Hafðu samband
allir@croisettehome.isS: 569 9090
Kirkjuteigur 21
kt. 4411200790
Hlekkir
Samfélagsmiðlar
© Copyright 2026 - Croisette Iceland
Knúið af
Fasteignaleitin