Croisette Iceland logo
Skráð 2. júlí 2025
Söluyfirlit

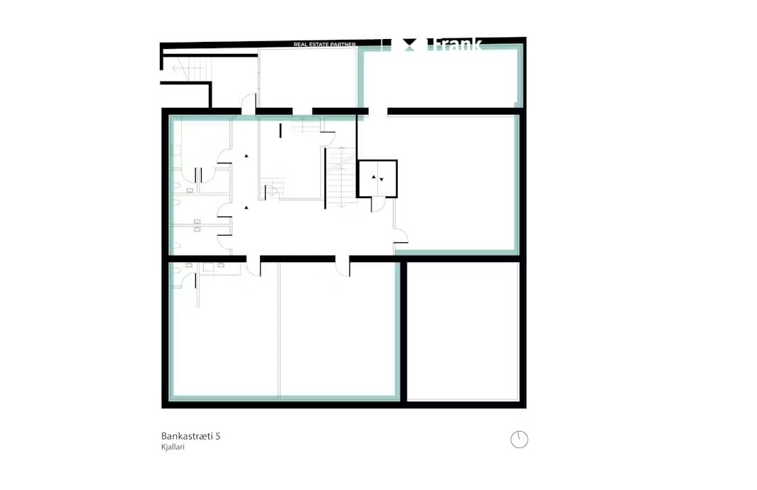
Bankastræti - (LEIGA) 5

Atvinnuhúsn.Höfuðborgarsvæðið/Reykjavík/Miðborg-101
460 m2
12 Herb.
Verð
Tilboð
Byggt 1930
Sameiginlegur
Fasteignanúmer
2004319_1
Húsgerð
Atvinnuhúsn.
Byggingarefni
Steypt
Númer hæðar
1
Númer íbúðar
1
Inngangur
Sameiginlegur
Matsstig
7 - Fullgerð bygging
Croisette Real Estate Partner kynnir TIL LEIGU - Bankastræti 5 .

Laust til leigu á þessum vinsæla stað í miðbænum með miklum sýnileika frá götu tæplega 460 fm atvinnuhúsnæði sem skiptist á milli jarðhæðar og kjallara. Rýmið er innréttað sem skemmtistaður í dag en einnig möguleiki að breyta í verslunarrekstur. Stórir gluggar og góð aðkoma er að byggingunni.


Nánari upplýsingar veitir:
 Davíð Ólafsson, Sölustjóri - atvinnueignir, í síma 766-6633
, tölvupóstur david@croisette.is.



Um skoðunar- og aðgæsluskyldu:

Í húsaleigulögum nr. 36/1994 er kveðið á um heimild aðila kalla til skoðunaraðila til úttektar á húsnæðinu fyrir afhendingu. Croisette real estare partner bendir væntanlegum leigjendum á að kynna sér vel ástand fasteigna við skoðun og fyrir tilboðsgerð og ef þurfa þykir að leita til sérfræðinga um nánari ástandsskoðun. Í tilfelli atvinnuhúsnæðis er ríkari heimild aðila að semja sig frá lögum og gildir þá ákvæði leigusamnings ef til ágreinnings kemur. 
 

Sambærilegar eignir

Opna eign
Til leigu
Image
Opna eign
Bankastræti 5
101 Reykjavík
460 m2
Verslunarhúsnæði
12
Tilboð
Opna eign
Til leigu
Image
Opna eign
Suðurlandsbraut 28
108 Reykjavík
500 m2
Skrifstofuhúsnæði
Tilboð
Opna eign
Til leigu
Image
Opna eign
Skútuvogur 12
104 Reykjavík
440 m2
Atvinnuhúsn.
Tilboð
Opna eign
Til leigu
Image
Opna eign
Sóltún 26
105 Reykjavík
510 m2
Skrifstofuhúsnæði
15
Tilboð
© Copyright 2025 - Croisette Iceland
Knúið af
Fasteignaleitin