Croisette Iceland logo
Skráð 2. júlí 2025
Söluyfirlit

Suðurlandsbraut 22

Atvinnuhúsn.Höfuðborgarsvæðið/Reykjavík/Háaleitis- og Bústaðahverfi-108
242 m2
10 Herb.
Verð
Tilboð
Mynd af Davíð Ólafsson
Davíð Ólafsson
Sölustjóri - atvinnueignir
Byggt 1986
Sameiginlegur
Fasteignanúmer
2012752_3
Húsgerð
Atvinnuhúsn.
Byggingarefni
Steypt
Númer hæðar
3
Númer íbúðar
1
Inngangur
Sameiginlegur
Byggingarstig
7 - Fullgerð bygging
Matsstig
7 - Fullgerð bygging
Croisette Real Estate Partner kynnir TIL LEIGU - Suðurlandsbraut 22 .

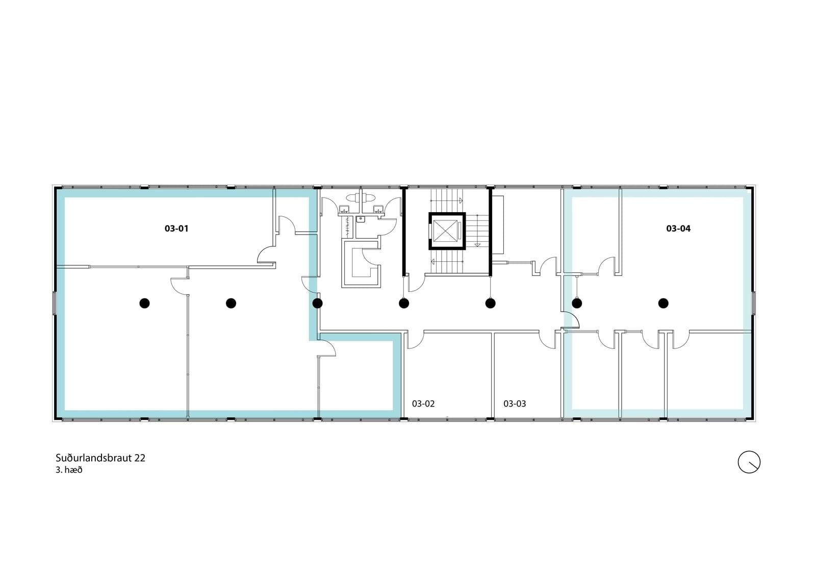
Á þriðju hæð byggingar er laust til leigu annars vegar 240 fm skrifstofuhúsnæði og hins vegar 156 fm skrifstofuhúsnæði á þessum vinsæla stað við Laugardalinn, merkt nr. 03-01 og 03-04 á grunnmynd. Útsýni til norðurs úr báðum skrifstofurýmum. Þá er laus ein skrifstofa í skrifstofukjarna félagsins á annarri hæð, hún er 37 fm og er nr. 8 á grunnmynd og snýr í suður. Skrifstofan er með hlutdeild í fundarherbergi og kaffistofu á sömu hæð.


Nánari upplýsingar veitir:
 Davíð Ólafsson Sölustjóri - atvinnueignir, í síma 766-6633
, tölvupóstur david@croisette.is.



Um skoðunar- og aðgæsluskyldu:

Í húsaleigulögum nr. 36/1994 er kveðið á um heimild aðila kalla til skoðunaraðila til úttektar á húsnæðinu fyrir afhendingu. Croisette real estare partner bendir væntanlegum leigjendum á að kynna sér vel ástand fasteigna við skoðun og fyrir tilboðsgerð og ef þurfa þykir að leita til sérfræðinga um nánari ástandsskoðun. Í tilfelli atvinnuhúsnæðis er ríkari heimild aðila að semja sig frá lögum og gildir þá ákvæði leigusamnings ef til ágreinnings kemur. 
 

Sambærilegar eignir

Opna eign
Til leigu
Image
Opna eign
Skeifan 19
108 Reykjavík
283 m2
Skrifstofuhúsnæði
1
Tilboð
Opna eign
Image
Opna eign
Síðumúli 35
108 Reykjavík
220 m2
Atvinnuhúsn.
Tilboð
Opna eign
Til leigu
Image
Opna eign
Hafnarstræti 7
101 Reykjavík
295.5 m2
Verslunarhúsnæði
Tilboð
Opna eign
Image
Opna eign
Bíldshöfði 18
110 Reykjavík
294.5 m2
Skrifstofuhúsnæði
11
Fasteignamat 55.800.000 kr.
Tilboð
Croisette Iceland logo
Croisette Iceland ehf.
kt. 441120-0790
Hafðu samband
Hlekkir
Samfélagsmiðlar
© Copyright 2025 - Croisette Iceland
Knúið af
Fasteignaleitin