Croisette Iceland logo
Skráð 10. des. 2025
Söluyfirlit

Suðurlandsbraut 18

Atvinnuhúsn.Höfuðborgarsvæðið/Reykjavík/Háaleitis- og Bústaðahverfi-108
300 m2
59 Herb.
Verð
Tilboð
Mynd af Davíð Ólafsson
Davíð Ólafsson
Sölustjóri - atvinnueignir
Byggt 1973
Sameiginlegur
Fasteignanúmer
2012728
Húsgerð
Atvinnuhúsn.
Byggingarefni
Steypt
Númer hæðar
1
Númer íbúðar
1
Lóðarréttindi
Leigulóð
Inngangur
Sameiginlegur
Matsstig
7 - Fullgerð bygging
CROISETTE - KNIGHT FRANK kynnir TIL LEIGU - Suðurlandsbraut 18 .

Til leigu 1. til 3.hæð í mjög flottu og einstöku húsi við Suðurlandsbrautina. 
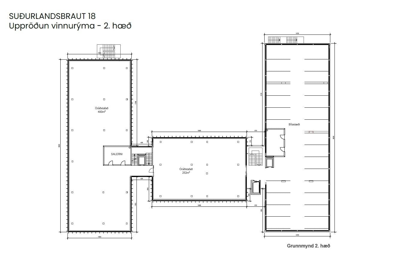
Um er að ræða verslunar og þjónustuhúsnæði á 1.hæð og skrifstofuhúsnæði á öðrum hæðum. Leigusali mun endurnýja og innrétta húsnæðið að þörfum leigutaka samkvæmt nánara samkomulagi. Húsið er á besta stað efst í Laugardalnum með útsýni í átt að Esjunni og yfir allan Laugardalinn. Um 110 bílastæði við húsið bæði fyrir fram og aftan.
Á annari og þriðju hæð eru lausar skrifstofur í stærðum á bilinu 300-665m2 og á 1.hæðinni er möguleiki á að vera með verslun og/eða veitingahús. Einnig kemur til greina að nýta 1.hæðina fyrir skrifstofur að hámarki 665m2.


Nánari upplýsingar veitir:
 Davíð Ólafsson, Sölustjóri - atvinnueignir, í síma 766-6633
, tölvupóstur david@croisette.is.


Um skoðunar- og aðgæsluskyldu:

Í húsaleigulögum nr. 36/1994 er kveðið á um heimild aðila kalla til skoðunaraðila til úttektar á húsnæðinu fyrir afhendingu. Croisette - Knight Frank bendir væntanlegum leigjendum á að kynna sér vel ástand fasteigna við skoðun og fyrir tilboðsgerð og ef þurfa þykir að leita til sérfræðinga um nánari ástandsskoðun. Í tilfelli atvinnuhúsnæðis er ríkari heimild aðila að semja sig frá lögum og gildir þá ákvæði leigusamnings ef til ágreinnings kemur. 

 

Sambærilegar eignir

Opna eign
Til leigu
Image
Opna eign
Skeifan 19
108 Reykjavík
283 m2
Skrifstofuhúsnæði
1
Tilboð
Opna eign
Image
Opna eign
Suðurlandsbraut 14
108 Reykjavík
333.1 m2
Skrifstofuhúsnæði
15
Tilboð
Opna eign
Til leigu
Image
Opna eign
Álfheimar 74
104 Reykjavík
352 m2
Skrifstofuhúsnæði
3
Tilboð
Opna eign
Til leigu
Image
Opna eign
Hafnarstræti 7
101 Reykjavík
295.5 m2
Verslunarhúsnæði
Tilboð
Croisette Iceland logo
Croisette Iceland ehf.
kt. 441120-0790
Hafðu samband
allir@croisette.isS: 569 9090
Kirkjuteigur 21
kt. 4411200790
Hlekkir
Samfélagsmiðlar
© Copyright 2026 - Croisette Iceland
Knúið af
Fasteignaleitin