Croisette Iceland logo
Skráð 18. ágúst 2025
Söluyfirlit

Skeifan 19

Atvinnuhúsn.Höfuðborgarsvæðið/Reykjavík/Háaleitis- og Bústaðahverfi-108
67 m2
1 Herb.
Verð
Tilboð
Mynd af Davíð Ólafsson
Davíð Ólafsson
Sölustjóri - atvinnueignir
Byggt 1988
Sameiginlegur
Fasteignanúmer
2239367_1
Húsgerð
Atvinnuhúsn.
Byggingarefni
Steypt
Númer hæðar
3
Númer íbúðar
1
Lóðarréttindi
Leigulóð
Inngangur
Sameiginlegur
Byggingarstig
7 - Fullgerð bygging
Matsstig
7 - Fullgerð bygging
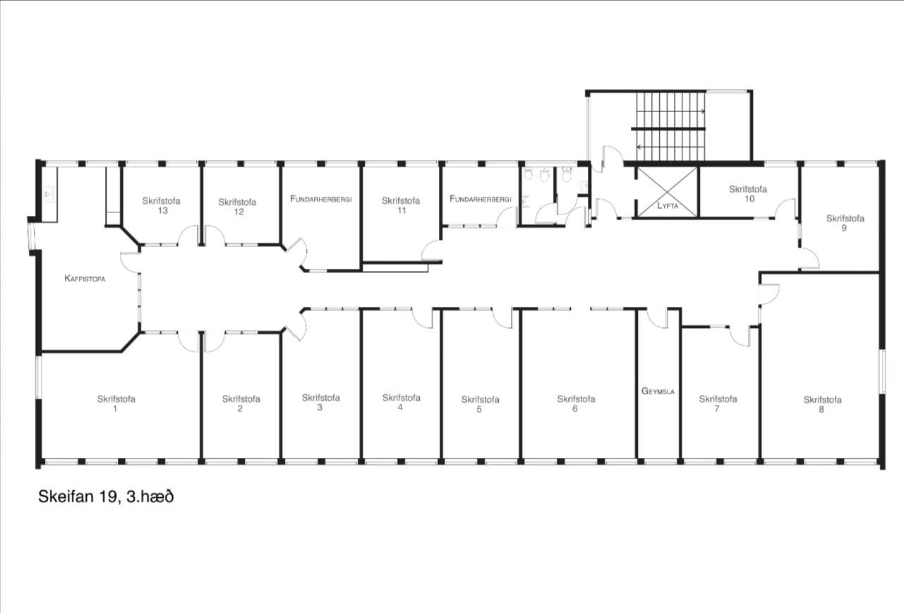
CROISETTE - KNIGHT FRANK kynnir TIL LEIGU - Skeifan 19 .

Skrifstofukjarni félagsins í Skeifunni 19 er beint á móti Pennanum.  Mikil eftirspurn hefur verið eftir minni skrifstofurýmum á svæðinu en á hæðinni eru samtals 11 skrifstofur.  Allar skrifstofurnar eru með hlutdeild í tveimur fundarherbergjum á sömu hæð og eldhússaðstöðu.  Skrifstofurnar eru frá tæplega 70 til tæplega 20 fm og snúa þrjár þeirra í suður og átta í norður.  Skrifstofurnar eru leigðar án húsgagna en fundarherbergin eru fullinnréttuð og þá eru sömuleiðis flott setsvæði þar sem hægt er að hitta fleiri leigutaka hæðarinnar og koma á tengingum og samvinnu sé áhugi fyrir slíku.  Ein skrifstofa er laus á hæðinni og er merkt nr. 8 á grunnmynd hæðar. Um er að ræða tæplega 67 fm hornskrifstofu með útsýni til norðurs.


Nánari upplýsingar veitir:
 Davíð Ólafsson, Sölustjóri - atvinnueignir, í síma 766-6633
, tölvupóstur david@croisette.is.



Um skoðunar- og aðgæsluskyldu:

Í húsaleigulögum nr. 36/1994 er kveðið á um heimild aðila kalla til skoðunaraðila til úttektar á húsnæðinu fyrir afhendingu. Croisette - Knight Frank bendir væntanlegum leigjendum á að kynna sér vel ástand fasteigna við skoðun og fyrir tilboðsgerð og ef þurfa þykir að leita til sérfræðinga um nánari ástandsskoðun. Í tilfelli atvinnuhúsnæðis er ríkari heimild aðila að semja sig frá lögum og gildir þá ákvæði leigusamnings ef til ágreinnings kemur. 

 

Sambærilegar eignir

Opna eign
Til leigu
Image
Opna eign
Lágmúli 6-8
108 Reykjavík
83 m2
Verslunarhúsnæði
31
Tilboð
Opna eign
Til leigu
Image
Opna eign
Skeifan 19
108 Reykjavík
67 m2
Skrifstofuhúsnæði
1
Tilboð
Opna eign
Image
Opna eign
Lágmúli 6-8
108 Reykjavík
83 m2
Verslunarhúsnæði
31
Tilboð
Opna eign
Image
Opna eign
Ármúli 19
108 Reykjavík
66 m2
Skrifstofuhúsnæði
Tilboð
© Copyright 2025 - Croisette Iceland
Knúið af
Fasteignaleitin