Croisette Iceland logo
Skráð 28. okt. 2025
Söluyfirlit

Austurstræti 5

Atvinnuhúsn.Höfuðborgarsvæðið/Reykjavík/Miðborg-101
22 m2
Verð
Tilboð
Fasteignamat
937.250.000 kr.
Brunabótamat
1.140.450.000 kr.
Mynd af Davíð Ólafsson
Davíð Ólafsson
Sölustjóri - atvinnueignir
Byggt 1945
Sameiginlegur
Fasteignanúmer
2002617_1
Húsgerð
Atvinnuhúsn.
Byggingarefni
Steypt
Númer hæðar
1
Númer íbúðar
1
Lóðarréttindi
Leigulóð
Inngangur
Sameiginlegur
Matsstig
7 - Fullgerð bygging
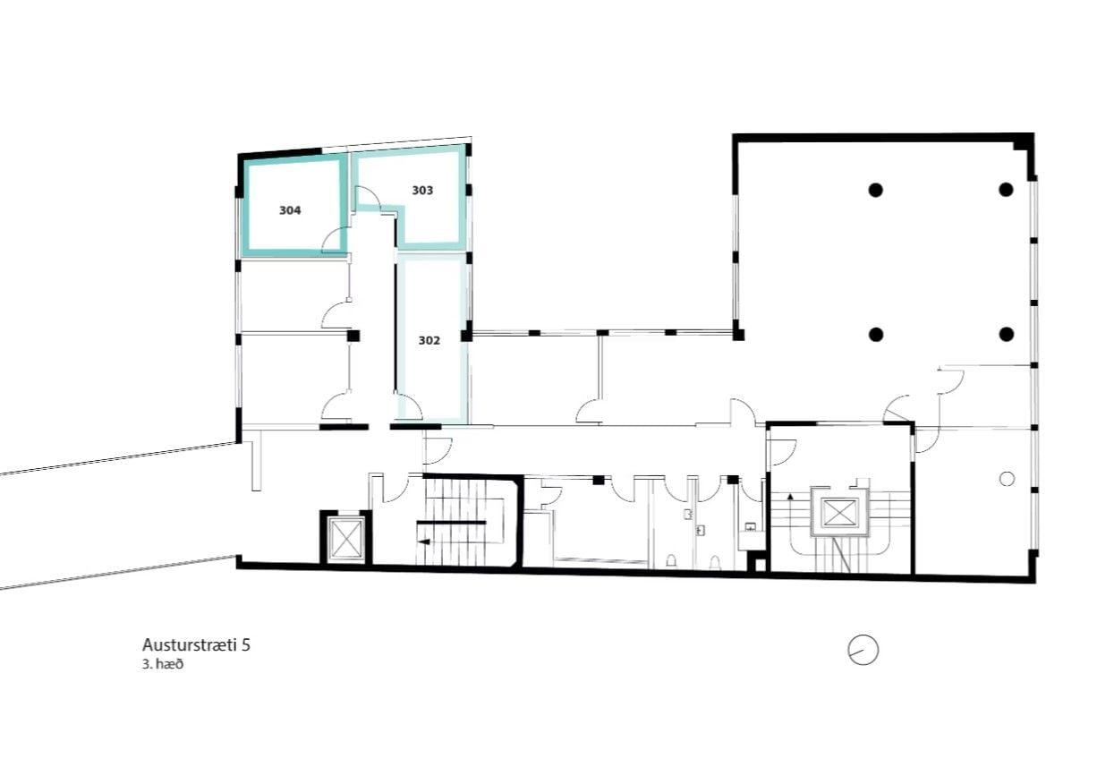
CROISETTE - KNIGHT FRANK kynnir TIL LEIGU - Austurstræti 5 .

Í Kvosinni er að finna sögufrægar byggingar i hjarta Reykjavíkurborgar. Á þriðju hæð í Austurstræti 5 eru lausar þrjár skrifstofur, rúmlega 21 fermeter að stærð. Kvosin er nálægt stofnbrautum og vel í sveit settar m.t.t. almenningssamgangna og væntanlegrar borgarlínu. Hér er því einstakt tækifæri.


Nánari upplýsingar veitir:
 Davíð Ólafsson, Sölustjóri - atvinnueignir, í síma 766-6633
, tölvupóstur david@croisette.is.


Um skoðunar- og aðgæsluskyldu:

Í húsaleigulögum nr. 36/1994 er kveðið á um heimild aðila kalla til skoðunaraðila til úttektar á húsnæðinu fyrir afhendingu. Croisette - Knight Frank bendir væntanlegum leigjendum á að kynna sér vel ástand fasteigna við skoðun og fyrir tilboðsgerð og ef þurfa þykir að leita til sérfræðinga um nánari ástandsskoðun. Í tilfelli atvinnuhúsnæðis er ríkari heimild aðila að semja sig frá lögum og gildir þá ákvæði leigusamnings ef til ágreinnings kemur. 

 

Sambærilegar eignir

Opna eign
Til leigu
Image
Opna eign
Austurstræti 5
101 Reykjavík
22 m2
Skrifstofuhúsnæði
Tilboð
Opna eign
Image
Opna eign
Klapparstígur 25-27
101 Reykjavík
24 m2
Skrifstofuhúsnæði
18
Tilboð
Opna eign
Til leigu
Image
Opna eign
Klapparstígur 25-27
101 Reykjavík
24 m2
Skrifstofuhúsnæði
18
Tilboð
Opna eign
Til leigu
Image
Opna eign
Dvergshöfði 4
110 Reykjavík
Verslunarhúsnæði
Tilboð
© Copyright 2025 - Croisette Iceland
Knúið af
Fasteignaleitin