Croisette Iceland logo
Skráð 28. okt. 2025
Söluyfirlit

Austurstræti 5

Atvinnuhúsn.Höfuðborgarsvæðið/Reykjavík/Miðborg-101
22 m2
Verð
Tilboð
Fasteignamat
937.250.000 kr.
Brunabótamat
1.140.450.000 kr.
Mynd af Davíð Ólafsson
Davíð Ólafsson
Sölustjóri - atvinnueignir
Byggt 1945
Sameiginlegur
Fasteignanúmer
2002617
Húsgerð
Atvinnuhúsn.
Byggingarefni
Steypt
Númer hæðar
1
Númer íbúðar
1
Lóðarréttindi
Leigulóð
Inngangur
Sameiginlegur
Matsstig
7 - Fullgerð bygging
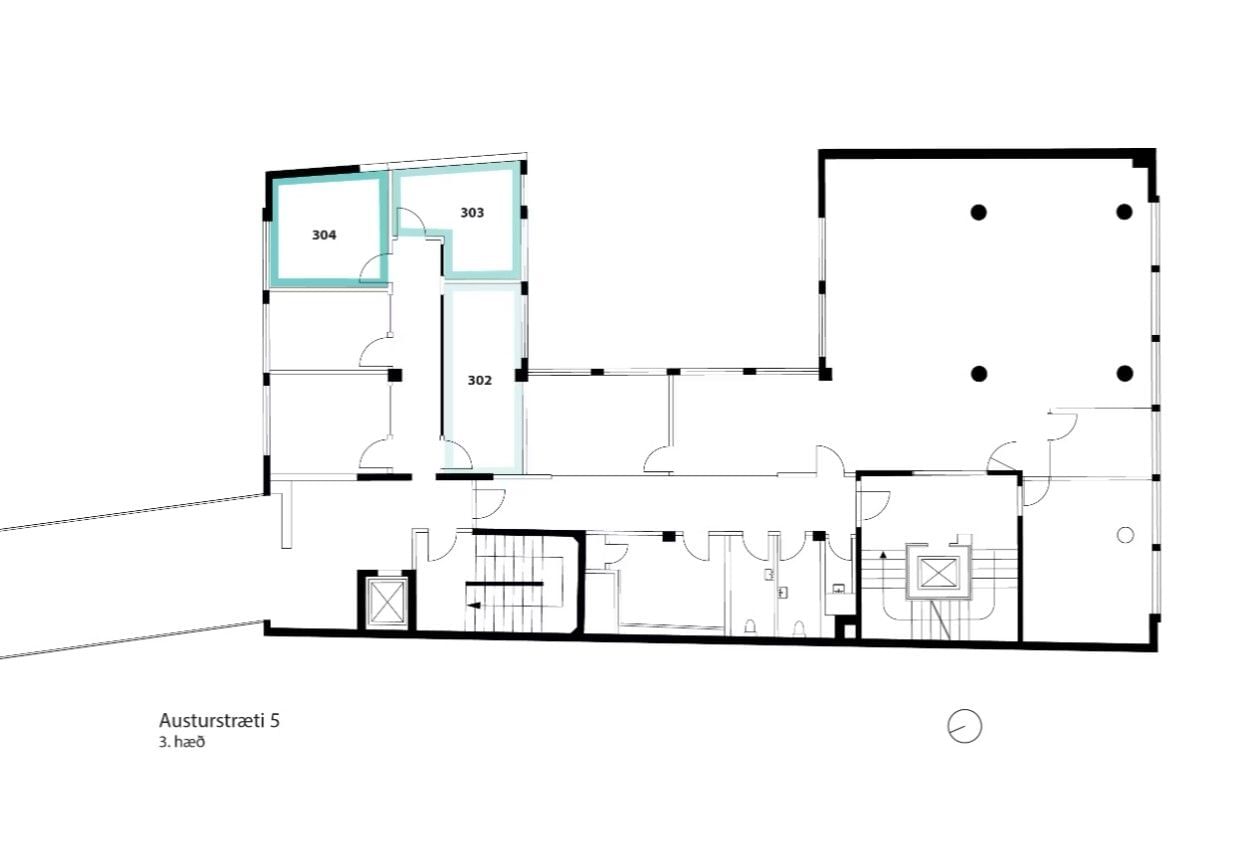
CROISETTE - KNIGHT FRANK kynnir TIL LEIGU - Austurstræti 5 .

Í Kvosinni er að finna sögufrægar byggingar i hjarta Reykjavíkurborgar. Á þriðju hæð í Austurstræti 5 eru lausar þrjár skrifstofur, rúmlega 21 fermeter að stærð. Kvosin er nálægt stofnbrautum og vel í sveit settar m.t.t. almenningssamgangna og væntanlegrar borgarlínu. Hér er því einstakt tækifæri.


Nánari upplýsingar veitir:
 Davíð Ólafsson, Sölustjóri - atvinnueignir, í síma 766-6633
, tölvupóstur david@croisette.is.


Um skoðunar- og aðgæsluskyldu:

Í húsaleigulögum nr. 36/1994 er kveðið á um heimild aðila kalla til skoðunaraðila til úttektar á húsnæðinu fyrir afhendingu. Croisette - Knight Frank bendir væntanlegum leigjendum á að kynna sér vel ástand fasteigna við skoðun og fyrir tilboðsgerð og ef þurfa þykir að leita til sérfræðinga um nánari ástandsskoðun. Í tilfelli atvinnuhúsnæðis er ríkari heimild aðila að semja sig frá lögum og gildir þá ákvæði leigusamnings ef til ágreinnings kemur. 

 

Sambærilegar eignir

Opna eign
Til leigu
Image
Opna eign
Klapparstígur 25-27
101 Reykjavík
24 m2
Skrifstofuhúsnæði
18
Tilboð
Opna eign
Til leigu
Image
Opna eign
Ármúli 19
108 Reykjavík
45 m2
Skrifstofuhúsnæði
Tilboð
Opna eign
Til leigu
Image
Opna eign
Ármúli 19
108 Reykjavík
32 m2
Skrifstofuhúsnæði
Tilboð
Opna eign
Til leigu
Image
Opna eign
Suðurlandsbraut 22
108 Reykjavík
38 m2
Skrifstofuhúsnæði
4
Tilboð
Croisette Iceland logo
Croisette Iceland ehf.
kt. 441120-0790
Hafðu samband
allir@croisettehome.isS: 569 9090
Kirkjuteigur 21
kt. 4411200790
Hlekkir
Samfélagsmiðlar
© Copyright 2026 - Croisette Iceland
Knúið af
Fasteignaleitin