Croisette Real Estate Partner kynnir TIL LEIGU - Lambhagavegur 11 .
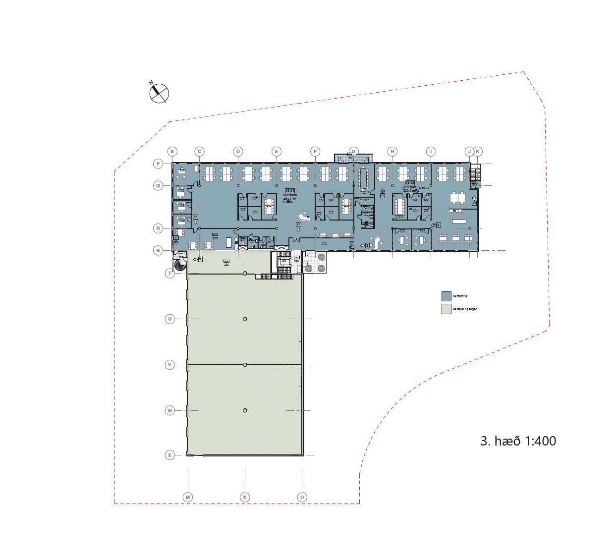
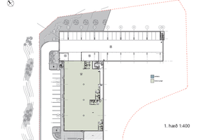
Um 4.700 fm skrif/Versl/Iðnaðarbil Frábær staðsetning mikið auglýsingagildi. Lambhagavegur 11 Um er að ræða 4.700 m2. Húsið er skrifstofu, verslunar og iðnaðarhús. Í húsinu er verslunarrými, 4 skrifstofurými og 2 iðnaðarrými með innakstursdyrum. Lóðin skiptist í efri og neðri lóð, þar sem neðri lóðin þjónar verslunum með bílastæði en efri lóðin þjónar skrifstofu og iðnaðarhluta hússins. Á lóðinni eru 56 bílastæði, þar af fjögur fyrir hreyfihamlaða í bílakjallara eru 39 bílastæði þar af 1 fyrir fatlaða, samtals eru 95 bilastæði og þar af eru 5 fyrir fatlaða. Bílastæði fatlaðra eru upphituð og í sama fleti og gangstétt. Tekur um ár að fullbyggja húsið. Hæðirnar verða innréttaðar að þörfum leigutaka.
Um skoðunar- og aðgæsluskyldu: Í húsaleigulögum nr. 36/1994 er kveðið á um heimild aðila kalla til skoðunaraðila til úttektar á húsnæðinu fyrir afhendingu. Croisette real estare partner bendir væntanlegum leigjendum á að kynna sér vel ástand fasteigna við skoðun og fyrir tilboðsgerð og ef þurfa þykir að leita til sérfræðinga um nánari ástandsskoðun. Í tilfelli atvinnuhúsnæðis er ríkari heimild aðila að semja sig frá lögum og gildir þá ákvæði leigusamnings ef til ágreinnings kemur.
Croisette Real Estate Partner kynnir TIL LEIGU - Lambhagavegur 11 .
Um 4.700 fm skrif/Versl/Iðnaðarbil Frábær staðsetning mikið auglýsingagildi. Lambhagavegur 11 Um er að ræða 4.700 m2. Húsið er skrifstofu, verslunar og iðnaðarhús. Í húsinu er verslunarrými, 4 skrifstofurými og 2 iðnaðarrými með innakstursdyrum. Lóðin skiptist í efri og neðri lóð, þar sem neðri lóðin þjónar verslunum með bílastæði en efri lóðin þjónar skrifstofu og iðnaðarhluta hússins. Á lóðinni eru 56 bílastæði, þar af fjögur fyrir hreyfihamlaða í bílakjallara eru 39 bílastæði þar af 1 fyrir fatlaða, samtals eru 95 bilastæði og þar af eru 5 fyrir fatlaða. Bílastæði fatlaðra eru upphituð og í sama fleti og gangstétt. Tekur um ár að fullbyggja húsið. Hæðirnar verða innréttaðar að þörfum leigutaka.
Um skoðunar- og aðgæsluskyldu: Í húsaleigulögum nr. 36/1994 er kveðið á um heimild aðila kalla til skoðunaraðila til úttektar á húsnæðinu fyrir afhendingu. Croisette real estare partner bendir væntanlegum leigjendum á að kynna sér vel ástand fasteigna við skoðun og fyrir tilboðsgerð og ef þurfa þykir að leita til sérfræðinga um nánari ástandsskoðun. Í tilfelli atvinnuhúsnæðis er ríkari heimild aðila að semja sig frá lögum og gildir þá ákvæði leigusamnings ef til ágreinnings kemur.